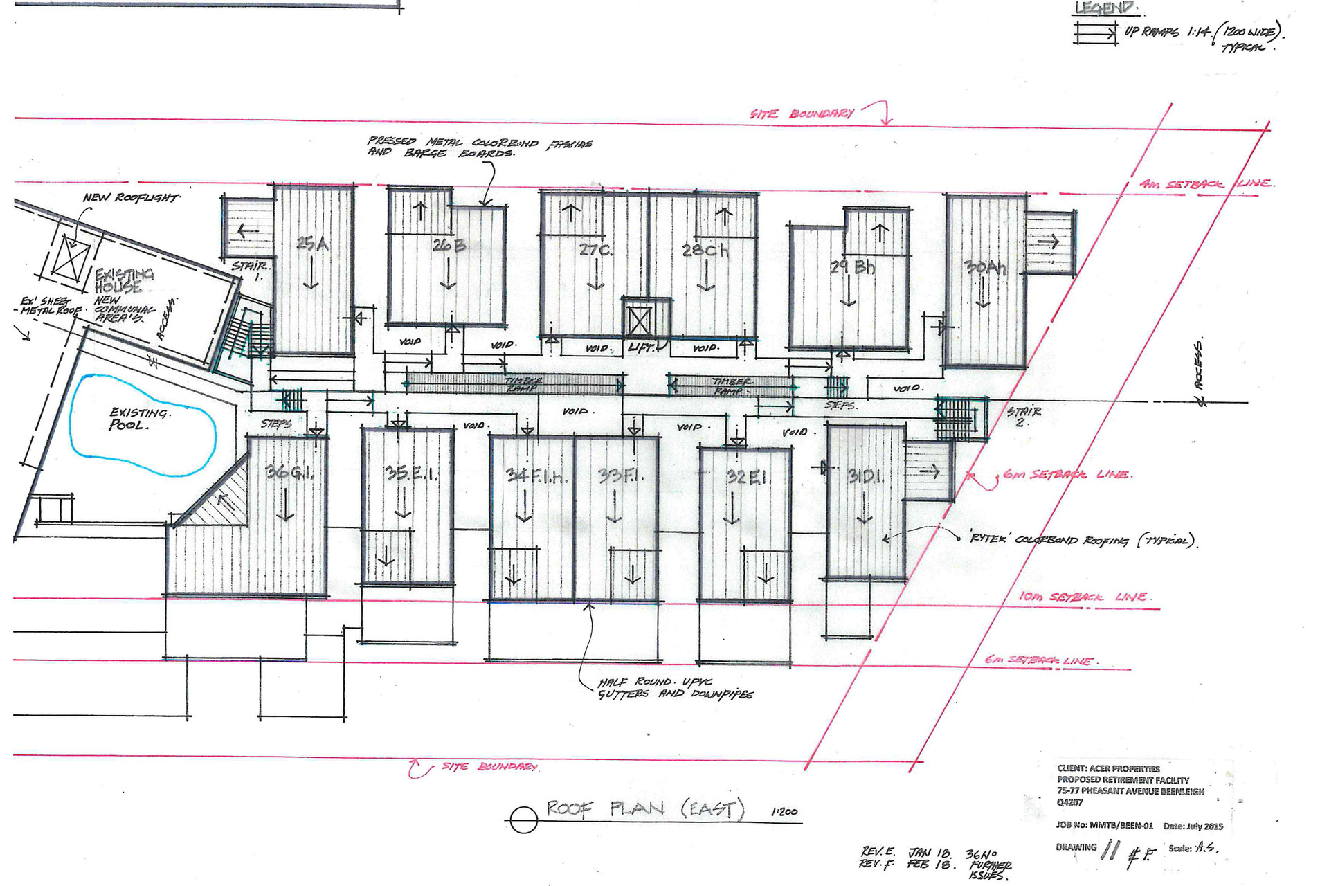
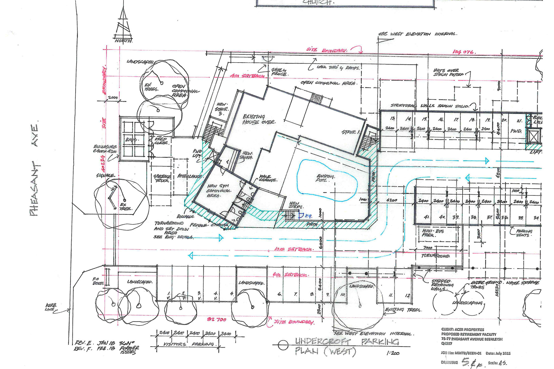
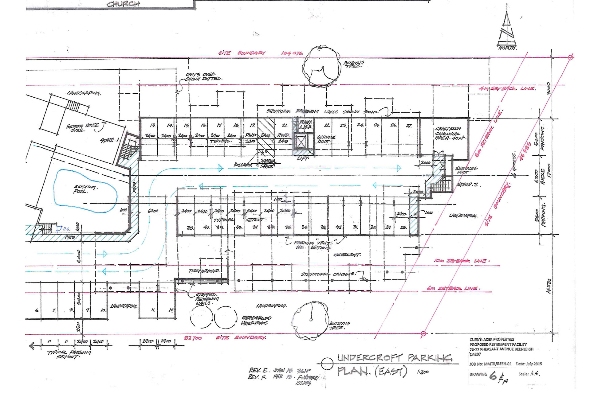
Development Site for 36 Over 50 Lifestyle Apartments
Current D.A. runs until 20th of November 2028.
Right Next Door to a Large Baptist Church in the best street in Beenleigh. Approved for 1, 2 and 3 bedroom Units each with their own car parking. The existing house and pool are being retained and incorporated into the development communal areas. One unit will house the onsite manager. There are beautiful landscaped gardens and relaxing BBQ areas. The communal areas provide for: enclosed deck area, TV room, quiet sitting room, library, kiosk / office, pool and changing rooms, gym, sauna, coffee station, kitchen, quiet reading room, craft room, workshop, PWD disabled toilets and ramps.
This huge two level family solid home has tenants. Situated close to schools, parks, shopping centres, only a couple minutes drive to Beenleigh CBD, with easy access to the M1 freeway. By appointment only!
AGENT
Von Barnes
p: 1300 556 745
m: 0409 481 594
- EMAIL AGENT
- Open for inspection Times
- Save to Calendar
- Save to Google Calendar