BACK TO SEARCH RESULTS
DEVELOPMENT SITE FOR SALE: WOOLOONGABBA
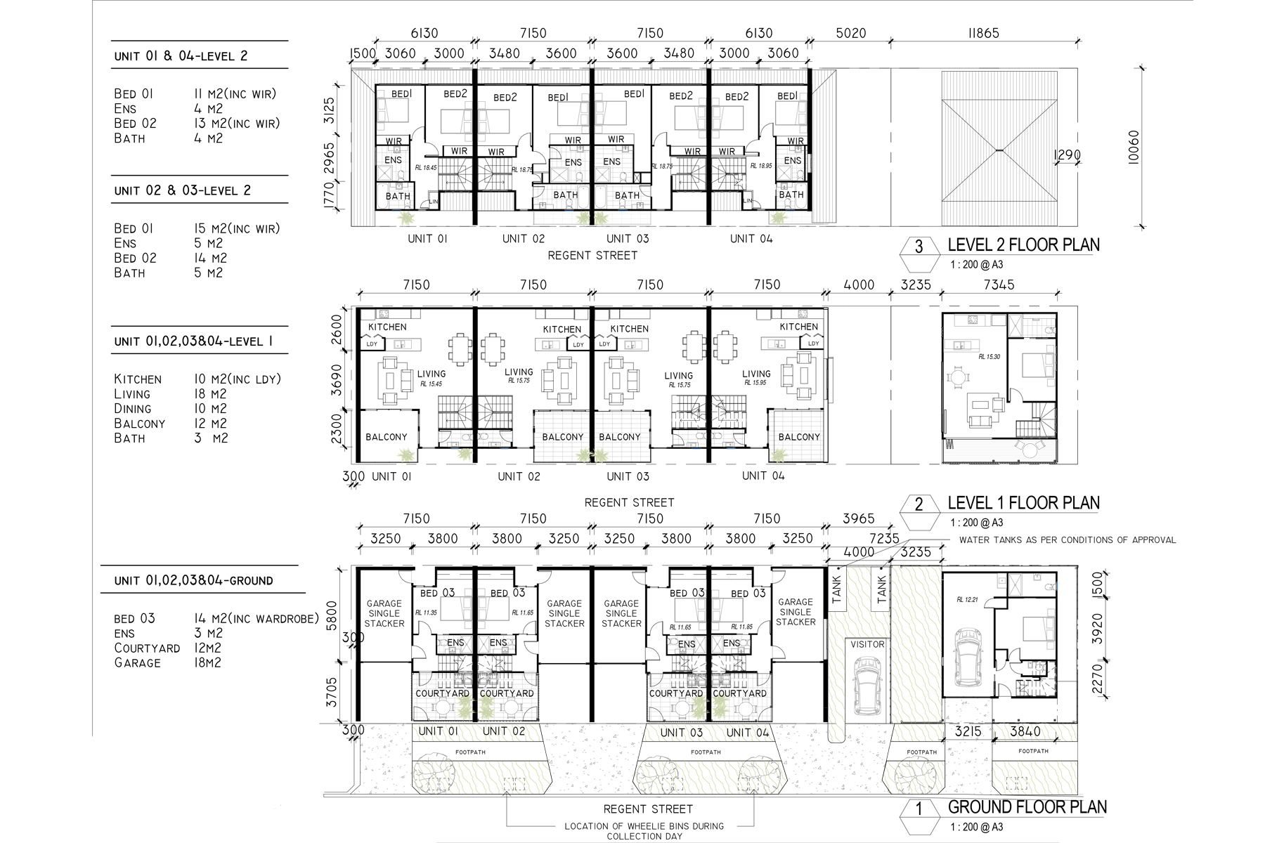
Unique Site, DA in place for 4 Townhouses and a new separate lot with Cottage.
Asking price: $1.80m
Development site with 40m street frontage, two existing cottages with holding income. The Development Approval has just been extended to December 2024. One of the existing cottages to be demolished and 4 three-storey townhouses constructed (3 bedrooms & 3 bathrooms each). This will be on a building unit plan with a CMS.
The second cottage raised and built under on its own separate small title (2 bedrooms & 2 bathrooms). All as per the proposed completed streetscape.
56
Regent Street
Woolloongabba
FOR SALE
AGENT
Von Barnes
p: 1300 556 745
m: 0409 481 594
- EMAIL AGENT
- Open for inspection Times
- Save to Calendar
- Save to Google Calendar