PERFECT SPOT FOR THAT BUSINESS RARE COMMERCIAL SITE
Development Site Highlights
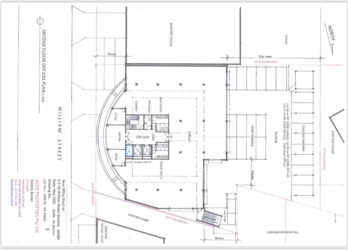
5-7 & 7A William Street Goodna Q4300 - Vacant Land
1. DA for 3 Storey Office Development STCA.
2. Directly opposite MacDonalds
3. Goodna town Centre.
4. High and dry : Floor levels above the DFE (defined flood event)
The DA Approval for this Office Development is with ICC. (STCA)...3 storeys (50 onsite car parking spaces at ground level and 2 levels of offices above totalling 1500m2 NLA) see plans. This is a rare commercial vacant site 1957m2 in Goodna Town Centre. It is zoned "Major Centre" and so offers many development options.
The options are endless - Offices, Shops, Childcare Centre, Healthcare, Community Use, Hotel, Bar, Mixed use.
On either side of this vacant land is a fitness centre and commercial offices.
This site is right in the mix, with its fringe location and purposeful design of the floor levels above Ipswich City Council DFE (defined flood event).
Located directly opposite MacDonalds and with direct access to the motorway, this is the perfect spot for any business.
Contact: Tommy Baxter 0414954490
AGENT
Von Barnes
p: 1300 556 745
m: 0409 481 594
- EMAIL AGENT
- Open for inspection Times
- Save to Calendar
- Save to Google Calendar